loader

Appartement 2 chambres La Plagne-tarentaise

Hébergement proposé par Lola - Membre du réseau de confiance My Home In depuis 16 oct. 2024
Référence : 83632
Choisir mes dates
Arrivée
Départ
Nbr. Pers.
Adultes
Enfants
Bébés
10 personnes au maximum
Choisir mes dates
loader
Besoin d'aide pour réserver ?
+33 (0) 661 108 714

Les locataires apprécient :

Description Générale

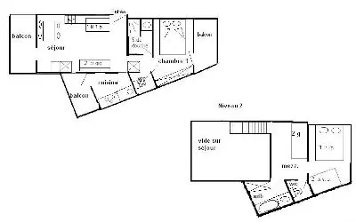
  • Appartement - 67m²
  • 2 chambres
  • 10 personnes
  • Etage numéro 2
  • Animaux non acceptés

Couchages et Salles de bain

  • 10 couchages
    • 2 lits doubles
    • 6 lits simples
  • 2 salles de bain

Cuisine équipée

  • Grille pain
  • Cafetière
  • Four
  • Four micro-ondes
  • Réfrigérateur
  • Lave vaisselle
  • Fer et table à repasser
  • Bouilloire
Voir +

Confort et loisirs

  • Chauffage
  • Télévision

Le mot du propriétaire Lola

testimonial quote 66

Résidence LE BELVEDERE - LA PLAGNE VILLAGES
Appt 8/10 pers. 67 m2, 3 pièces + mezzanine, exposition, SUD/OUEST, vue sur les pistes, balcon, 2ème étage - Entrée 1 - sans ascenseur - Cuisine : séparée : 3 plaques électriques, réfrigérateur, four, micro-ondes, lave-vaisselle - Séjour : coin repas, 2 lits gigognes, 1 lit banquette, TV - CH.1: 1 lit 2p - SDB 1 : douche - WC sép. A l'étage : Mezzanine ouverte sur séjour : 2 lits gigognes, CH.2 : 1 lit 2p + 1 lit 1 pers. SDB 2 : baignoire, WC séparés. En option et en supplément : ménage de fin de séjour, draps, serviettes, forfaits ski. Appartement duplex, très agréable, dans petite copropriété calme, très belle vue sur les pistes et la montagne, grâce à ses 3 balcons - Les sols : plastique - Cheminée condamnée - Casier à skis N° 14 au RDC - Literie : couettes - ANIMAUX NON ADMIS - LE BELVEDERE : petite résidence calme, située au pied des pistes et à environ 700m des commerces ( par navettes gratuite en bus toutes les 15min environ). Parking extérieur gratuit à 100 m de l'immeuble, non privé.
Prestations disponibles :
Kit Couchage DRAPS 1 pers. jetable : 12
Kit Couchage DRAPS 2 pers. jetable : 15
Menage Fin Séjour CHALET de moins 150m² : 201
Ménage Fin Séjour Studio 2 pers : 49
Ménage Fin Séjour Studio 3 Pers : 52
Ménage Fin Séjour Studio 3/4 Pers : 52
Ménage Fin Séjour Petit 2 pièces/Studio DIV : 62
Ménage Fin Séjour 2 pièces 4/5 Pers : 80
Ménage Fin Séjour 2 Pièces 6 pers : 92
Ménage Fin Séjour 3 Pièces 6/7 Pers : 101
Ménage Fin Séjour 3 Pièces 7/8 Pers : 124
LINGE DRAPS + SERVIETTES Lit 1 pers./semaine : 32
Ménage Fin Séjour 4 Pièces 8/10 Pers : 140
Ménage Fin Séjour 5 Pièces : 201
Ménage Fin Séjour CHALET plus 150m² : 325
Linge DRAPS + SERVIETTES Lit 2 pers./semaine : 44
LINGE HOUSSE COUETTE + SERVIETTES Lit 1p/semaine : 45
LINGE HOUSSE COUETTE + SERVIETTES Lit 2 p./semaine : 57
LINGE DRAPS uniquement Lit 1 pers./semaine : 23
LINGE DRAPS uniquement Lit 2 pers./semaine : 31

Voir +
testimonial quote 99
Place Du Chaudron 73210 La Plagne-Tarentaise
Calendrier mis à jour il y a 1 jour
Horaires
Arrivée 17:00
Départ 10:00
Annulation
Remboursement intégral 14 jours
Paiement
30% à la réservation
Solde 30 jours avant
Caution
1000€
Voyager couverts ! Vos réservations sont systématiquement assurées en cas d'annulation.
Payer 30% à la réservation, le solde de votre séjour est réglé préalablement à votre arrivée.
Ensemble et solidaires ! Pour réserver en France, privilégiez les services d'un site Local et Français.
Paiement sécurisé par la banque Société Générale : VISA, AMEX, Master Card, Chèques vacances.
PLAGNE SOLEIL – RESIDENCE LE CERVIN. Charmant appartement 2 pièces avec vue... Essentiel
Plagne Centre - Résidence Lodges 1970 - 

Un appartement flambant neuf au... Classique
Appartement 1 chambre La Plagne-tarentaise Essentiel
Résidence LE TROMPE L'OEIL - Appartement idéal pour une famille proche de... Classique
Appartement 1 chambre La Plagne-tarentaise Essentiel
Appartement 1 chambre La Plagne-tarentaise Essentiel
Fermer